6 commandes architecturales inédites

La villa Noailles s’interroge aujourd’hui sur ce que peut être une maison pour illustres contemporains et propose, comme un remake du concours de 1976, à six jeunes agences d’architectes de concevoir, d’imaginer et de documenter les villas idéales de six célébrités aux pratiques, aux univers et aux degrés de notoriété multiples. Ces propositions seront présentées dans le cadre de l’exposition.

Accattone pour Greta Thunberg
ACCATTONE est un projet éditorial indépendant basé à Bruxelles fondé en 2014 par les architectes Sophie Dars (1983), Carlo Menon (1981) et les graphistes Ismaël Bennani (1987) et Orfée Grandhomme (1984), rejoint en 2019 par l’architecte Galaad Van Daele (1988). La publication étudie les pratiques mineures en art et architecture à travers les moyens spécifiques de la revue imprimée et dispose d’une renommée internationale et universitaire. accattone.be

DIXNEUFCENTQUATREVINGTSIX pour les Spice Girls
DIXNEUFCENTQUATREVINGTSIX est une société d’architecture basée à Paris et fondée en 2014 par Mathilde Gaudemet (1986) et Arthur Ozenne (1986). Remarquée par le projet d’extension d’une maison à Uzès, l’agence est lauréate des Albums de jeunes architectes et paysagistes décernés par le ministère de la Culture. 19-86.fr

Etienne Descloux pour Mariah Carey
ÉTIENNE DESCLOUX (1972) est un architecte basé à Berlin, diplômé de l’École polytechnique fédérale de Lausanne (EPFL) et de l’Universität der Künste (UdK) Berlin. Depuis 2000, il travaille comme architecte indépendant à Berlin avec Tobias Engelschall et Irina Kromayer. Il a construit des maisons ainsi que des galeries, des espaces d’art, des musées, des magasins, des bureaux, des restaurants, des spas en Suisse et en Allemagne. desclouxengelschall.de

Marc Leschelier pour Jayne Mansfield
MARC LESCHELIER (1984) est un architecte établi à Paris et Milan. Il est enseignant à l’École d’architecture Paris-Malaquais et fondateur de la Unbuilt Archive, une archive spécialisée autour de l’Architecture radicale. Au cours de l’année 2017-2018, il fut pensionnaire à la Villa Médicis à Rome. marcleschelier.com

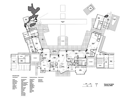
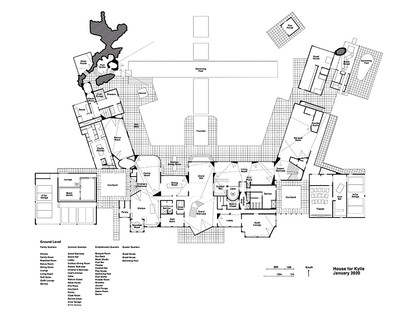
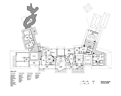
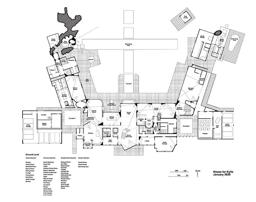
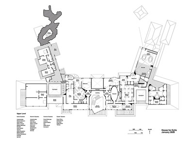
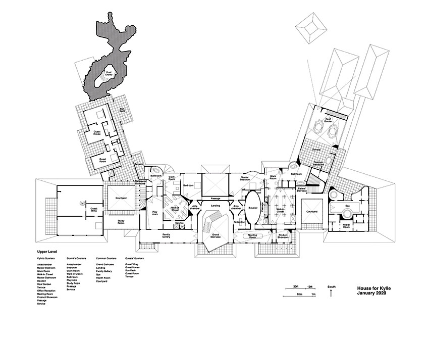
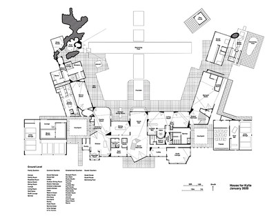
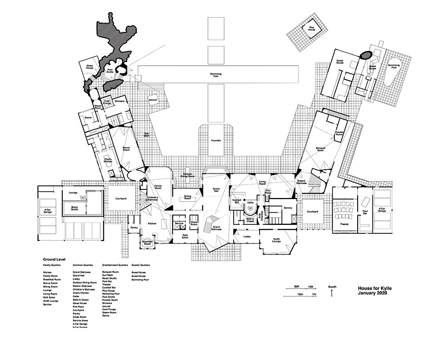
Octave Perrault pour Kylie Jenner
OCTAVE PERRAULT (1988) est un architecte établi à Paris. Il a cofondé le collectif Åyr qui a travaillé sur la domesticité à l’ère du numérique. Il est commissaire de la série d’expositions « Cruising Pavilion » sur les sexualités gay, l’architecture et les cultures du cruising. Il travaille actuellement chez Dominique Perrault Architecture à Paris en plus de ses activités indépendantes. Il est diplômé de l’Architectural Association à Londres en 2013. octaveperrault.com

UR pour Thomas Pesquet
UR est un bureau d’architecture et d’urbanisme installé à Paris et à Bordeaux, fondé par Gaétan Brunet & Chloé Valadié. Engagé dans une diversité de projets et d’échelles, le bureau développe une culture du projet manipulant indifféremment espace, temps et processus comme matériaux d’une vision incluant des questions environnementales et sociétales. ur-bau.eu

Accattone pour Greta Thunberg
DIXNEUFCENTQUATREVINGTSIX pour les Spice Girls
Etienne Descloux pour Mariah Carey
Marc Leschelier pour Jayne Mansfield
Octave Perrault pour Kylie Jenner
UR pour Thomas Pesquet

You are using an outdated browser.
Please upgrade your browser to improve your experience.